1
Anzahl der Objekte: 1 | 1
Obj.: 1 | 1

Gewerberäume Büro ab ca. 60 m² bis 580 m² in zentraler Lage von Freiberg

www.rkimmobilien.com Bürofläche Freiberg
www.rkimmobilien.com
3.480,- €
 
Bsp. Büro Raum Bild 1 Bürofläche Freiberg
Bsp. Büro Raum Bild 1
Bsp. Büro Raum Bild 2 Bürofläche Freiberg
Bsp. Büro Raum Bild 2
Bsp. Sanitäranlage Bild 1 Bürofläche Freiberg
Bsp. Sanitäranlage Bild 1
Bsp. Sanitäranlage Bild 2 Bürofläche Freiberg
Bsp. Sanitäranlage Bild 2
Flur 1.OG Bürofläche Freiberg
Flur 1.OG
Grundriss mit Bsp. Möblierung Bürofläche Freiberg
Grundriss mit Bsp. Möblierung
Bsp. 3 Büroräume ca. 60 m² Bürofläche Freiberg
Bsp. 3 Büroräume ca. 60 m²
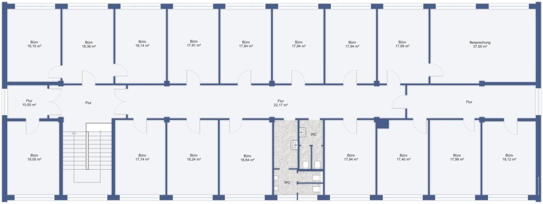
Grunriss ohne Bsp. Möblierung Bürofläche Freiberg
Grunriss ohne Bsp. Möblierung

Objektart

Bürofläche

Adresse

09599 Freiberg

Objektdaten

Objekt-Nr. 37
Fläche (ca.) 580 m²
Kaltmiete 3.480,- €
Informationen
Gesamtfläche (ca.)
580 m²
bezugsfrei ab
sofort !
Details
Kaution
3 Kaltmieten
Energieausweis Baujahr
1995
Provision für Mieter
für Mieter: 2,38 Kaltmieten (incl. 19 % MwSt.)

Gewerberäume in zentraler Lage von Freiberg, PKW-Stellflächen sind am Objekt anmietbar, auch das Parken ist auf der ruhigen Nebenstraße möglich, vielseitige Nutzungsmöglichkeiten

Besonderheiten:
+ modernes Bürohaus, helle Räume
+ kostensparende Gasbrennwertheizung
+ anmietbare Fläche nach Wunsch ab ca. 60 m² bzw. 3 Räumen bis 580 m², verteilt über 2 Etagen (1.OG + 2.OG)
+ gute Größe der Räume (ca. 18 m² pro Raum)
+ Wachschutz
+ je nach Mietdauer und Mietpreis erfolgt die Übergabe der Gewerberäume im renovierten oder Teilrenovierten Zustand, Sie haben die Wahl
+ Renovierung kann kurzfristig erfolgen
+ Anmietung von festen PKW-Stellplätzen möglich

Alle Mietpreise zzgl. 19 % MwSt..

Sie erreichen uns am besten per Email
(Kontaktformular) oder zu den nachfolgenden
Bürozeiten:

Montag geschlossen
Dienstag 10 bis 18.00 Uhr
Mittwoch 10 bis 13.00 Uhr
Donnerstag 10 bis 18.00 Uhr

Tel. 03731 - 22003

Nähe Zentrum, gute Parkmöglichkeiten

Energieausweis wird bei der Besichtigung vorgelegt

Ansprechpartner

Herr Reinhard Kotewitz
Telefon: 03731 / 22003
Telefax: 03731 / 22944
mail@rkimmobilien.com

Ich bin damit einverstanden, dass mir Karten von Google angezeigt werden. Es gelten die Datenschutzbedingungen von Google (https://policies.google.com/privacy).

Ich bin einverstanden

Objektanfrage

Sie haben noch Fragen zu dem Angebot oder wollen einen Besichtigungstermin vereinbaren, dann füllen Sie einfach das untenstehende Formular vollständig aus und wir setzen uns schnellstmöglich mit Ihnen in Verbindung.
* Pflichtfelder
Cookies erleichtern die Bereitstellung unserer Dienste. Mit der Nutzung unserer Website erklären Sie sich damit einverstanden, dass wir Cookies verwenden. Weiterführende Informationen erhalten Sie in unserer Datenschutzerklärung.
OK